Via Garibaldi 31 a Savignano s/r (FC)
(+39) . 0541.941546
Lunedì - Venerdì 08:30 - 19:00

Il Cantiere di Villa Gallia B a Savignano sul Rubicone(Castelvecchio)

  • Home
  • In Costruzione


Perchè scegliere Villa Gallia B?

Nuova realizzazione Moderna & Green!
Palazzina di sole 11 unità abitative.

Consegna 2026.

Disponibilità disoluzione indipendente da cielo e terra, abbinata da un solo lato, con giardino di oltre 350mq dove è possibile installare una piscina interrata di 50mq (il regolare permesso è già stato approvato).
Al piano terra zona giorno con grande vetrata sul giardino privato, camera matrimoniale con balcone, disimpegno e bagno.
Al piano superiore due ampie stanze con bagno.
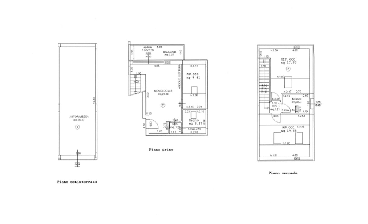
Completa la proprietà un piano servizi (garage doppio + cantina) di oltre 60mq, il tutto collegato internamente.
Dotazioni:
Gas Free, Impianto fotovoltaico indipendente, pompa di calore, riscaldamento a pavimento e tanto altro...

Vi Aspettiamo ogni giorno (esclusa la Domenica) per informazioni dettagliate su questo progetto:
Acquisto Diretto dal Costruttore senza costi di mediazione - Pagamenti e Mutui personalizzabili con interessi e tassi favorevoli!!


GUARDA IL PROGETTO

Finiture & Condizioni

Termocappotto

Impianto riscaldamento a pavimento

Sanitari sospesi e non, delle migliori marche

Predisposizione aria condizionata in tutti i piani

Pavimenti e rivestimenti a scelta dei clienti

Portoni blindati con serratura europea anti intrusione

Porte interne di tantissime finiture e porte a scomparsa per ottimizzare gli spazi

Videocitofono

Scarichi silenziati

Impianto pannelli fotovoltaici indipendenti kw 3 con inverter tutto indipendente - per la produzione di energia elettrica

Pompe di calore a energia elettrica

Aperture soggiorno con infisso scorrevole

Soluzioni indipendenti con ampio giardino

Linea vita

Predisposizione Ricambio aria automatizzato

Categoria: Bifamiliari e altre tipologie
Location: Savignano sul Rubicone (Castelvecchio)

Villa Gallia - Savignano sul Rubicone


SOLUZIONE A
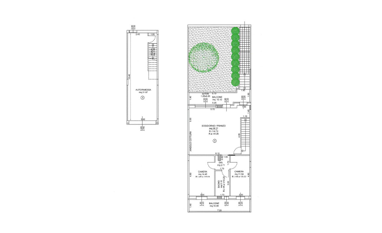
Appartamento Indipendente comodamente e completamnte sviluppato al piano terra con giardino privato, zona giorno con vetrata sul giardino di circa 32mq, 2 camere da letto, bagno con zona notte servita da ampio e comodo balcone.


SOLUZIONE B
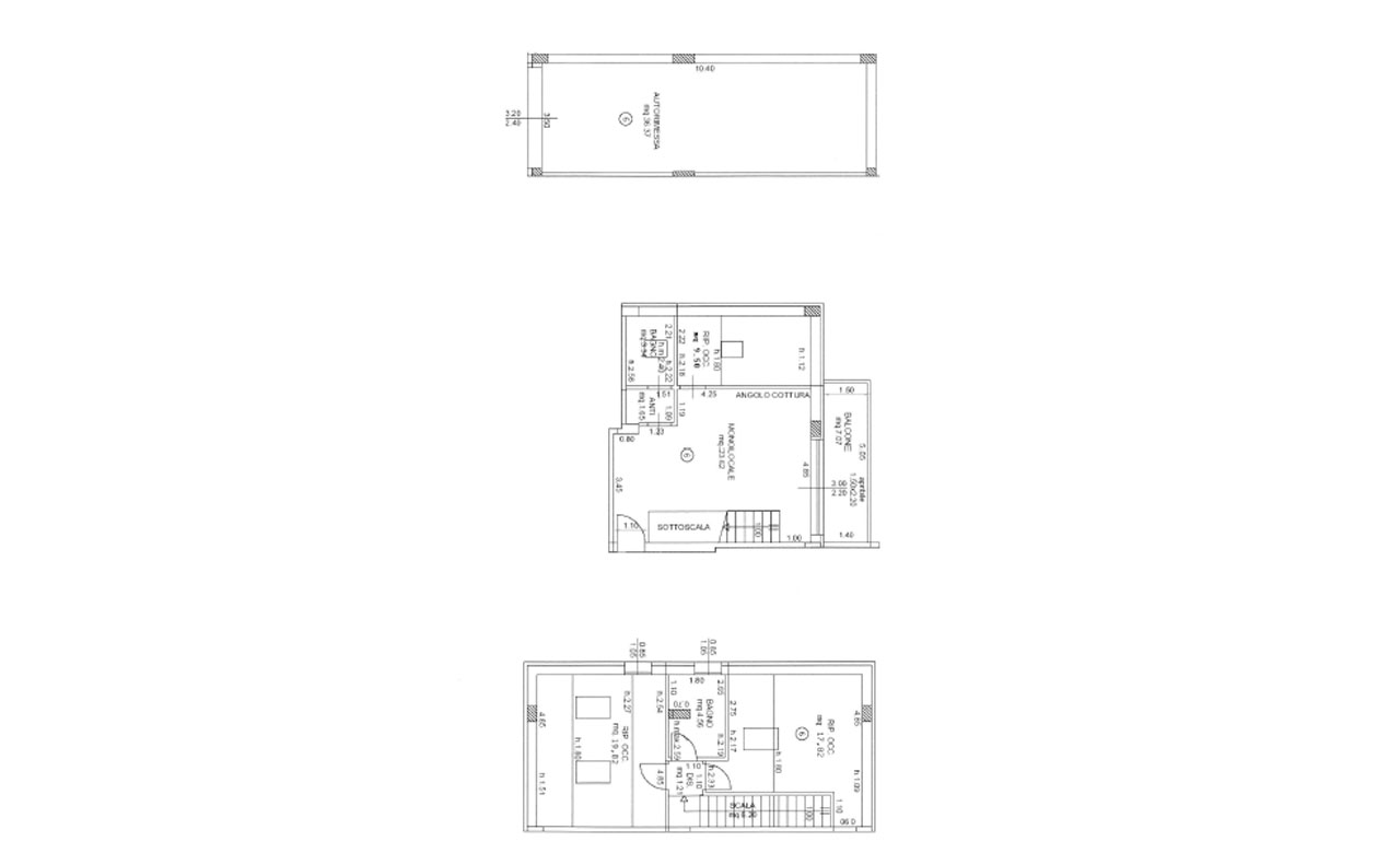
Appartamento Indipendente disposto su 2 livelli con giardino privato.
Soggiorno con angolo cottura molto luminoso grazie ad una grande vetrata, balcone, camera matrimoniale, bagno, ampia stanza ad uso ripostiglio e dispensa.
Al piano superiore altre 2 stanze con bagno. Completa la proprietà un garage di oltre 32mq.


SOLUZIONE C
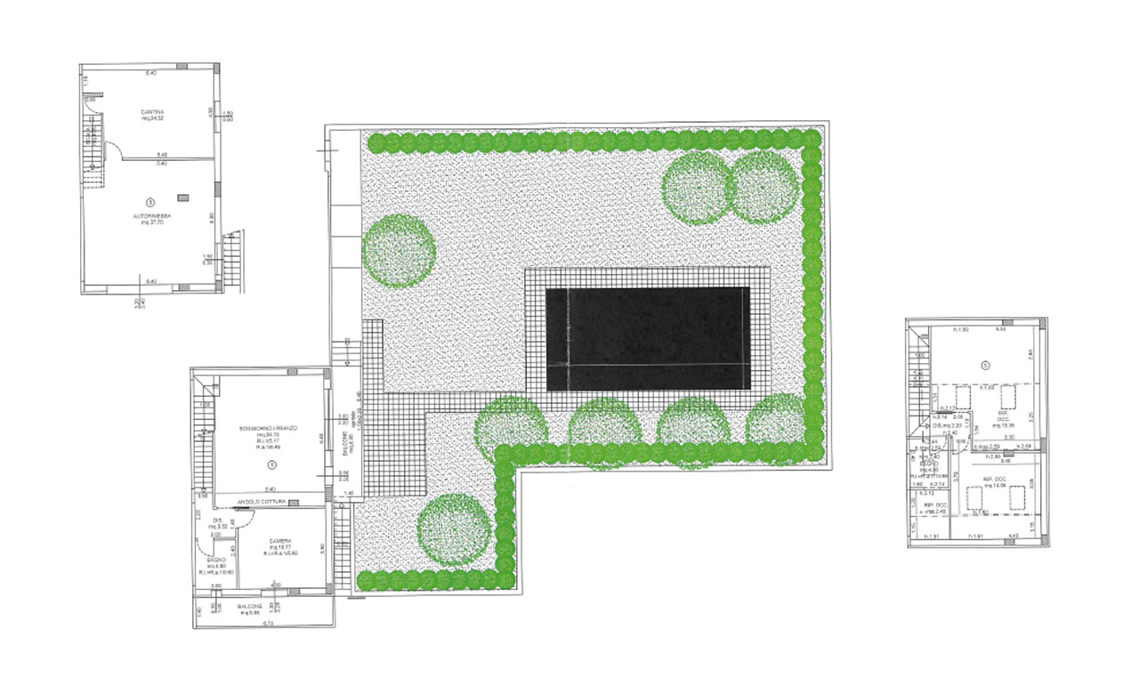
Casa a schiera di testa, libera cielo e terra con giardino di oltre 350mq dove è possibile installare una piscina interrata di 50mq (permesso già approvato).
Al piano terra zona giorno di 36mq con grande vetrata su giardino privato, camera matrimoniale, balcone, disimpegno e bagno.
Al piano superiore 2 ampi ambienti con bagno.
Completa la proprietà un piano servizi (garage doppio + tavernetta) di oltre 60mq, il tutto collegato internamente.


Chiamate i nostri uffici per avere maggiori informazioni

Acquisto diretto dal costruttore senza spese di mediazione.